Santarém, Cartaxo, Cartaxo e Vale da Pinta, Centro (Vale da Pinta)
Moradia em Vale da Pinta a 4 quilómetros do Centro do Cartaxo e a 15 min, de carro, de Santarém.
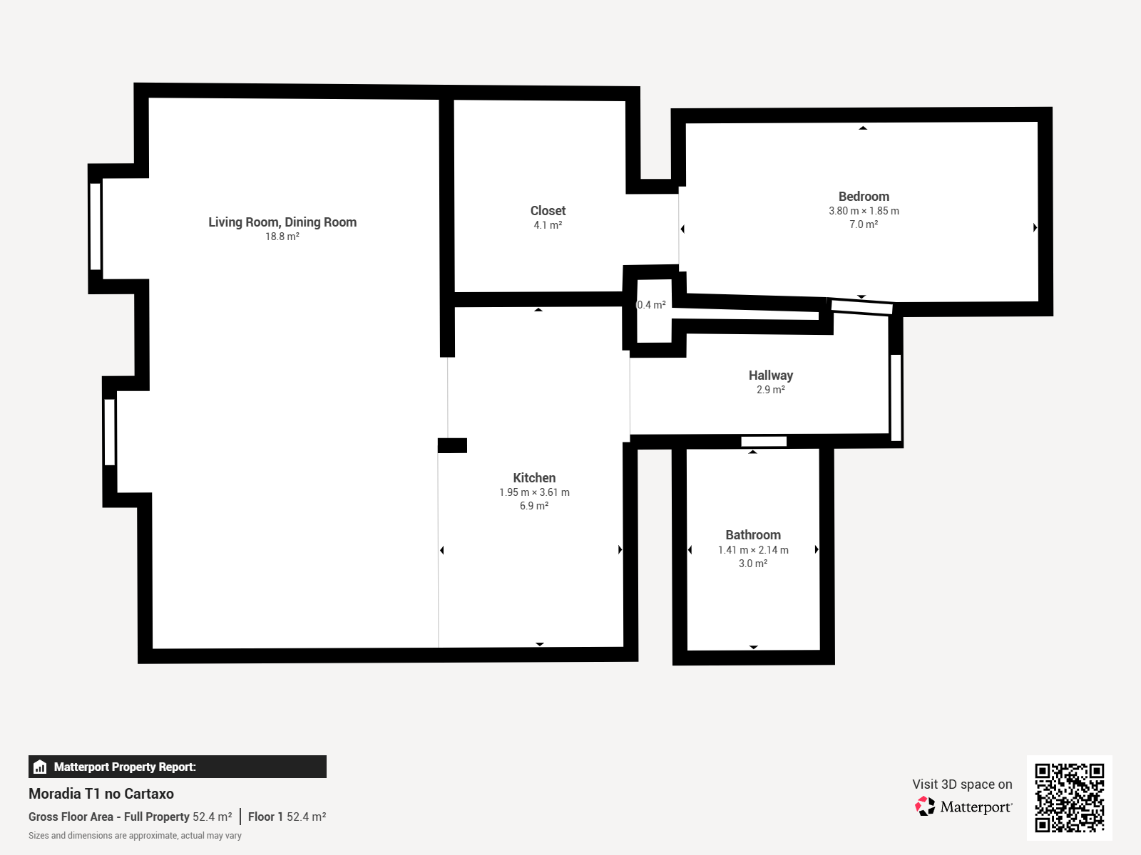
Composta por Sala e Cozinha (equipada com fogão, exaustor e frigorífico); Quarto com Closet e Wc Completo.
Localizada numa zona rural, calma e rodeada de natureza.
A cinco minutos da Escola Básica e Secundária, zona com Cafés, Restaurantes e Clube Desportivo.
Conheça o Vale da Pinta através do nosso Video!
Faça aqui, também, a Sua Visita Virtual!